Vernon Avenue Village [competition]

Chicago, Illinois

Location

Typology

Tiny home community

Program

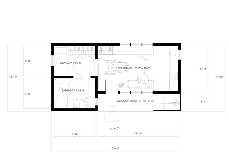
Tiny home community comprising 11 independent housing units of 351 sqft | 32 sqm; a 1200 sqft | 111 sqm communal space with a kitchen, gathering space, laundry room, and community health centre; secured bike storage, trash and recycling receptacles, and a hardscaped area accommodating parking for 3 cars.

South Vernon Village asks: how can architecture become a springboard rather than a stopgap? How can we give “home” meaning, dignity, and momentum?

Situated on a gently sloping, one-acre site overlooking the Georgia Strait in Nanoose Bay, British Columbia, the Mallard Road Residence is a 3,638-square-foot private home designed to balance expansive ocean views with a heightened sense of privacy.
Bordered by a forested edge to the east and a neighbouring residence to the west, the home’s orientation and spatial organization respond directly to the site’s natural and built context.
Situated on a gently sloping, one-acre site overlooking the Georgia Strait in Nanoose Bay, British Columbia, the Mallard Road Residence is a 3,638-square-foot private home designed to balance expansive ocean views with a heightened sense of privacy.
The architectural plan delineates private and public zones with clarity. The eastern wing houses the primary bedroom suite, taking advantage of the natural seclusion offered by the adjacent forest, while the western portion of the home is configured as a series of open-plan living spaces. This side of the residence is fully glazed, maximizing panoramic views toward the water and extending the visual boundary of the interior outward.

Reflecting a thoughtful synthesis of client aspirations, contextual sensitivity, and architectural economy