Mallard House

Nanoose Bay, Vancouver Island

Location

Typology

Single family home

Size

Single family home

Scope of Services

Schematic Design; Conceptual Design; Construction Documentation

Developer

Carey Developments Ltd.

Design

February 2012 - May 2012

Construction

September 2012 - March 2013

A home that is both grounded in its landscape and open to the expansive horizon beyond

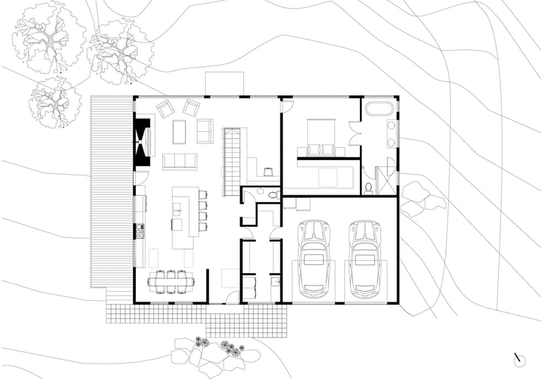
Situated on a gently sloping, one-acre site overlooking the Georgia Strait in Nanoose Bay, British Columbia, the Mallard Road Residence is a 3,638-square-foot private home designed to balance expansive ocean views with a heightened sense of privacy.
Bordered by a forested edge to the east and a neighbouring residence to the west, the home’s orientation and spatial organization respond directly to the site’s natural and built context.
The architectural plan delineates private and public zones with clarity. The eastern wing houses the primary bedroom suite, taking advantage of the natural seclusion offered by the adjacent forest, while the western portion of the home is configured as a series of open-plan living spaces. This side of the residence is fully glazed, maximizing panoramic views toward the water and extending the visual boundary of the interior outward.
While the main floor accommodates all essential living functions, allowing the clients to age in place with ease, secondary bedrooms and recreation spaces are situated on the lower, walk-out level, reinforcing the home’s flexibility and future adaptability.
Working within a modest construction budget of $130 per square foot, the project required a disciplined architectural approach. The resulting form is deliberately restrained—conceptually conceived as a simple box. Within this pragmatic envelope, the design introduces spatial richness through careful programmatic placement and an emphasis on the experiential qualities of light, view, and movement.
Central to the clients’ vision was the desire for an uninterrupted connection to the landscape. As such, floor-to-ceiling glazing wraps the primary living areas, and the expansive deck—strategically located on the western façade—preserves sightlines while capturing the warmth of the setting sun. This outdoor space also serves as a privacy buffer, subtly screening the residence from the neighbouring property without compromising access to light or views.

Reflecting a thoughtful synthesis of client aspirations, contextual sensitivity, and architectural economy